-
다울친환경 대표이사 인사말

안녕하십니까 ?
다울 친환경 영농조합 법인
홈페이지를 찾아주신 여러분 반갑습니다.
2013년 “다함께 사는 우리”라는 뜻을 가지고 그동안 오랜 경험을 바탕으로 친환경 농산물 전문 법인을 시작하였습니다.“다함께 사는 우리”라는 다울의 뜻을 기리며 친환경 학교 급식, 로컬푸드를 바탕으로 쌓은 신뢰와 믿음을, 더욱 더 많은 분들에게 다울의 울타리를 경험 하실수 있도록 작지만 정성을 담은 감동을 함께 공유 하고자 합니다.
우리 아이들에게 밥상을 차려주는 마음으로 친환경 농산물만 고집하고 생산자와 소비자가 상생하는 올바른 먹거리 문화를 이끌어가는 공간으로 만들기 위해 최선의 노력을 할 것입니다.
감사합니다.회사소개

“다울친환경 영농조합법인” 법인은 지난 7년 동안 친환경 업무 경험을 가지고 있는 유경험자로 구성되어 있으며, “다함께 사는 우리” 라는 뜻을 지닌 다울의 의미처럼 학교 급식을 준비함에 있어 학교와 함께 걸어가는 마음으로 준비 할 것입니다.사무실

소분 작업장 전경

원재료 및 상품 입출고 전용 이중 출입문

전처리 작업장 전경

회사정보 및 사업장구성 소개
설립일자 2013년 10월 15일 주소 경남 양산시 동면
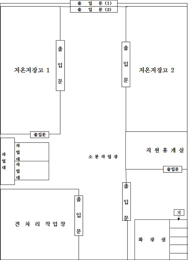
금산 4길 42-1사업장면적 304㎡ 전화번호 055-781-1160 팩스 055-781-1161 이메일 dawul6632@naver.com 명칭 개소 면적 저온저장고 2개소 70㎡ 전처리장 1개소 20㎡ 사무실 1개소 50㎡ 휴게실 1개소 10㎡ 화장실 1개소 5㎡ 소분작업장 1개소 149㎡ 다울친환경 공장 내부 작업경로

인증서 및 신고증





